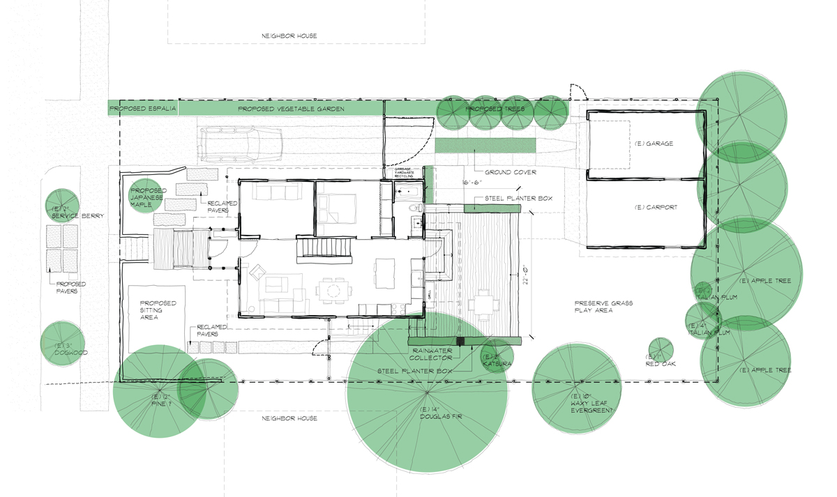
After all this talk about concrete removal and deck building, I realized last week that we didn’t have an actual site plan on our blog. So, I took our CAD version and prettied it up for you (click to enlarge).
A few things to mention:
- The deck will have steps on three sides, providing a direct connection to the yard, driveway and basement stairs. The remaining sides will be enclosed by two steel planter boxes. An awning above (shown in this post, but redesigned a bit) will provide protection from the elements (rain, not sun – this is Seattle) and a structural steel gutter will direct rainwater to a chain that will feed the south planter box.
- The concrete pavers that we salvaged from our old sidewalk will go in the front yard, connecting the driveway to the front steps. Additional pavers (either salvaged or new) will provide a path from the street to the sidewalk. (By the way, the Persian Ironwood that we picked for our free street tree (after much blog discussion) – well, the city planted a Serviceberry. Oh well.)
- Additional concrete pieces will be used as small pavers extending off the existing south sidewalk and connecting to a sitting area in the southwest corner of the front yard. The front gets good evening sun and even though we often hang out on the stoop, it would be nice to have an additional lounge area with a couple of modern Adirondack chairs.
- The concrete apron that connected the driveway to the carport (that is now a pile of rubble) will eventually be replaced with grass or additional plants. While we want to preserve a small area of lawn in the back, if everything else was a lush blanket of native plants and edibles, that’d be a-ok with us.
- Most of the existing trees are not on our property, but do provide a nice buffer (along with pine cones, needles and under ripe apples). The Red Oak, Katsura and smaller Italian Plum were planted this year and we hope to eventually add more along the perimeter of the back yard.
- The area to the north of the backyard driveway is where our current raised veggie bed is. We’ve considered expanding the garden along the entire north fence line and maybe someday filling in that backyard portion with trees to provide more privacy. At the front, the fence ends about 12′ shy of the sidewalk and so this strip could be a good spot for a fruit tree espalier, shared with our neighbors.
This site plan is still somewhat conceptual and needs more extensive landscaping and drainage design, but these are our big picture thoughts. Although our lot is not huge, there are plenty of projects to take on and we’ll most likely divide the work into several phases based on time and funds.
But the deck, the deck is happening now. More progress photos soon!
