We had our big 2nd trimester ultrasound today and were beyond excited to see a healthy GIRL!
Most of our family and friends were predicting a girl (as did a few old wives tales) and we couldn’t be happier. With three boys in the house already (Kyle, Bailey and Felix), it was high time we leveled the playing field a bit. It’s been a big day and although it’s all still sinking in, I find myself thinking about things down the road – like taking her to see the Nutcracker for the first time or going shopping together. My sister just had an adorable little girl a few weeks ago (the first grandchild in the family!) so it’s exciting to think of the cousins being BFF’s. Kyle is equally thrilled and has already committed to future tea parties with a guy friend who is having a little girl in May.
Now that we know the gender, it’s time to start thinking a bit more about the nursery. On our design page, you’ll notice a certain lack of information on the current floor plan. We intentionally left the flex room blank because it’s secretly always been designed as a nursery. It all started two years ago, when we were getting ready to gut most of our main floor. At the time, neither of us had baby on the brain, but we still wanted to make sure we wouldn’t be making any major mistakes with the size or shape of the space. So we did some research and put together a rough layout that has lived on hidden layers in our AutoCAD file ever since.
For those of you that might be new to the blog, here’s a glimpse of what the room in question looked like when we closed on the house about 5 1/2 years ago:

Before moving in, we tore up the dark green carpet, got rid of the green couch, then proceeded to paint the walls green. Huh.

In the spring of 2010, we tore it all apart:

There was a subtle framed opening separating the 1910 living room from the 1910 dining room, but because we wanted to make it more of a separate space, we added a framed wall with a smaller opening. We thought about just adding a standard door, but thought it would look awkward and the larger sliding doors gave us more flexibility as our needs change.

The space has served mainly as a TV room since then, but we did transform it into a temporary bedroom when we had our house appraised last year. (The wardrobe was purchased intentionally for its ultimate use in the nursery.)
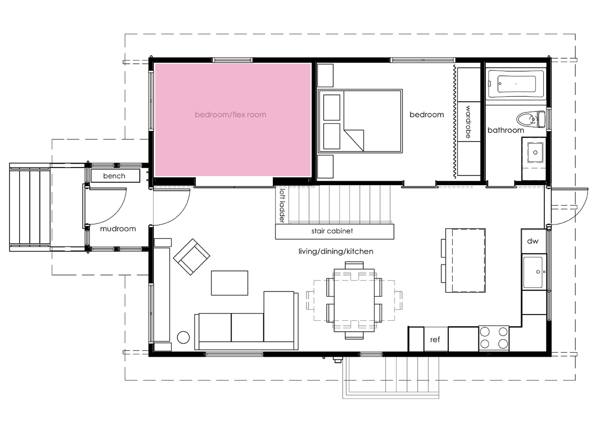
But back to the floor plan – since that quick layout we drew up a couple of years ago, we’ve made a few tweaks since and the current plan for the room looks something like this (click to enlarge):
The obvious starting point was to put the crib under the small “piano window”. Even though we’re not slaves to symmetry, it seemed to be the right solution, both functionally and compositionally. Next, we decided to dedicate the east wall for storage. It will help serve as acoustical barrier from our bedroom on the other side of the wall and is the only solid wall in the room. Our plan in to use a single IKEA Pax wardrobe (39″ wide) in lieu of a built-in closet. With the different interior fittings available, we can easily reconfigure the inside to adapt with our little girl. Next to the wardrobe, we’d like to find a nice dresser than can double as a changing table (and then just be a dresser down the road). We’d love to find something used that just needs a little TLC, but no luck yet. Above the dresser we’d like to have a floating shelf for extra display space.
Although we have doors on the current wardrobe set-up, we’ll be storing those away and using a curtain system. Unlike our bedroom where we have a curtains hung on a suspended cable system, this time we’ll be looking into a ceiling-mounted track to prevent any sagging and provide a safer set-up for little hands.
We also plan on keeping the West Elm chevron rug that is currently in the space. Next to the larger window on the west side of the room, Kyle is going to build his daughter a low bench with storage cubbies underneath. The bench could act as a window seat of sorts and the cubbies could eventually hold books and toys.
In the corner we’ll put some type of rocker or glider and a place to rest our feet. We also already installed a ceiling fan/light combo that will stay.
As far as colors, fabric and all of those other decisions – we’re still mulling things over and doing a ton of research. More posts to come over the next 5 months!
Oh, one more thing. If you haven’t already, you still have two more days to vote for chezerbey over at Apartment Therapy. Only the top six nominees move on to next week’s final voting so we NEED YOUR SUPPORT. It only takes a couple of minutes, but it means so much to our competitive little souls. And when I say “our”, I mean this little girl too:

Look at those two little feet kicking around. Seriously, at one point during our ultrasound she had a foot in her hand, practicing her best Chuck Norris moves. It’s obvious that even the littlest Zerbey means business when it comes to competitions.
And that’s my last shameless plug for this week. We are so grateful for the support we’ve already received, but we know that there are still some slackers out there. (Yes, you.)


Well isn’t that the most exciting thing ever – a girl!!! Congratulations!
Kyle is going to build his daughter…awww….all sorts of warm fuzzies!!!
looks like a great plan for the space, a perfect room for a little girl 🙂
…a girl! Congratulations!
And:
I’ve just registered at the homies to vote for you!
It was not an easy decision as I also read (and like) the brick house, manhatten nest etc.
But you not only own a dog AND A CAT – soon this irresistable charm and cuteness offensive will be exponetiated by a baby girl, so the decision was not too difficult!
Beside that I appreciate the continuity of your blog and your style. I like the way you introduce your projects with a sketch and describe the ideas and the process on the way to the final solution and result – also always having an eye on sustainability. The before and after photos are always well taken and it is just fun to follow your blog.
Its great to see how your little house has changed over the years…
Best greetings from Berlin!
congratulations! how exciting for you two. life will soon be a changing in a very remarkable way.
Congrats! Girls are fun. (I’m sure boys are too, but I don’t have one!) It’s funny. When I was pregnant, EVERYONE told me I was having a boy because of the way I was carrying. I told them I was having a girl, and people were actually like, “No, you aren’t! You’re in for a surprise.” (I had amnio, so yes, I was having a girl!)
Girl Leos are the BEST.
Thought the same thing. Melting heart here.
Thanks everyone, I’m thinking I want to paint the 2 big doors to the nursery a nice Coral color 🙂
Congratulations!!!!! That is such exciting news!
Do you have to register to vote? (Dumb question, I know) I thought I voted earlier, but I suspect I didn’t actually.
Hi Laura, you do have to register (and don’t worry, a lot of people think that the process is confusing). Here’s a link: http://community.apartmenttherapy.com/sign_up
Once you’re registered, click here to vote: http://www.apartmenttherapy.com/best-home-design-blog-nominations-the-homies-2012-166616
(And thanks!)
Pink tones scare me.
Aww, thanks Katja! Totally made my day. =)
I know, I love it!
Uh, yeah, just found out I had registered (in 09 no less!). Going to vote now . . .
MANY congratulations to the three of you!
and then you mentioned autoCAD… ick… i think i got a little sick to my stomach. lol
again, many congratulations!
Congrats! How exciting! Now you’ll have wide selection of cute clothes to buy. The room layout looks good. I think that crib placement works best for the room.
Congrats on the girl! And welcome to the club. My daughter (1st kid as well) was just born this past January. So what are the dimensions of the room. My wife and I really need to blog about our nursery room setup. It’s pretty small by modern standards, 10’x10′. But we make it work.
It’s pretty real now that we now that “it” has become a “she” I would do anything for her. It’s going to make the nursery projects that much more enjoyable and easy to accomplish.
think of it as the color of your blushing cheeks
Congrats!
Acoustical barrier.. that is rich. Having just had a baby boy added into my life, I know the idea of an acoustical barrier is some you read about on paper and not something that exists in a real house with a real crying baby. We have a long skinny house that isn’t nearly as open as your and when that baby cries.. oh.. he is heard easily in every inch on the house. Weather he is 70′ away or 2′ away.. no acoustical barriers exist. Hehe. I thought the same thing when I designed our place.. heh.
Either way it’s fun, and a big change. Enjoy the moments you can, and forget about the moments you can’t.
Haha, I know…who are we kidding?
Yeah!! A curly red headed niece!! Yipee! Congratulations all! xxoo
Right on for the window seat! That was my DREAM as a little girl. A cozy place to read or write or draw or just dream. A GIRL! Yay and congratulations!!
Haha, we’ll see…I’m guessing curly brown hair. =)
The room is about 9′-6″x13′-0″ so a pretty decent size. The only downside is that one wall is mostly doors so it limits furniture arrangement. I’d love to see how you laid out your space!
Our girl was born in September and it is wonderful. Enjoy. Pink tones scare me too.
Congrats! Love the plan for the nursery… can’t wait to see that little girl’s room come together.
A girl! Congrats. Can’t wait to see the amazing nursery she is going to have.
Thanks Stefanie!
I am so so happy for you both! Little girls are awesome!
I love the plan for the nursery! So well thought out. Also, I love the exposed wood beams, blue walls, and wooden ladder! Perfection.
http://thewalkup.wordpress.com/
[…] so we already showed you what we have in mind for the basic nursery layout, but over the last several months I’ve been thinking more and more about specifics like […]
[…] in February, we found out we were having a girl and shared with you where the nursery would be and a sketch of a floor plan we had in mind. In […]