I don’t know what happened. Maybe it was daylight savings time, or the rain, or the fact that we’ve spent the last EIGHT months immersed in the exterior project…but we have lost almost all motivation to finish the inside of the front porch. We had set a reasonable goal of completing it by Thanksgiving, but now even that seems unlikely. Even though it’s a small space, we still have to go through all of the same steps, which means a lot of stop.go.stop.go with all the various dry times for spackle, caulk, primer and paint. And there is a lot of trim work to do…which is fussy and not that rewarding. There’s also no looming deadline hanging over our heads. [This time last year, we were frantically trying to finish the bathroom and complete 3 (of 9) architect registration exams before Christmas.]
So we’ll see how it goes. In the meantime, let’s see exactly where we’re at in this whole remodel thing.
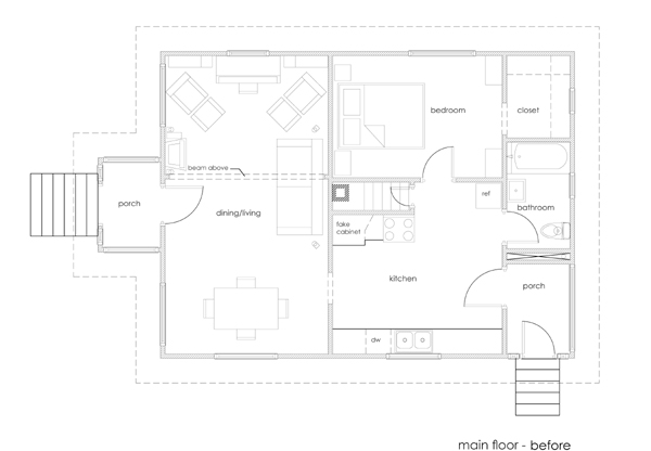
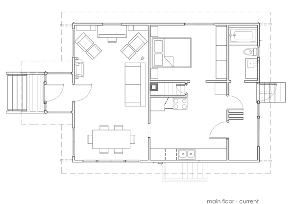
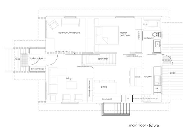
In the design section we show “before” and “after” floor plans but the reality is, we’re currently somewhere in between the two. So we put together a hybrid set of plans to give an idea of how far we’ve come and how far we still have to go. [click on images to enlarge.]
The first major interior alterations started in 2008. By the end of that year, we had a new bathroom and bedroom. 2009 has been focused mostly on the exterior, though we will [soon] be finishing our mudroom/entry space. We also have a few spaces “in transition”. When the bathroom was moved over, we used part of the old bathroom as a mudroom – or, to be fancy, we also called it the “bathroom ante room” (since you had to go through it to get to the new bathroom). This summer we closed in the back porch and relocated the back door. The old back porch and old bathroom-turned-mudroom now serves as one big mudroom/storage space.
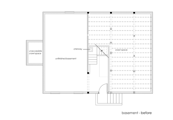
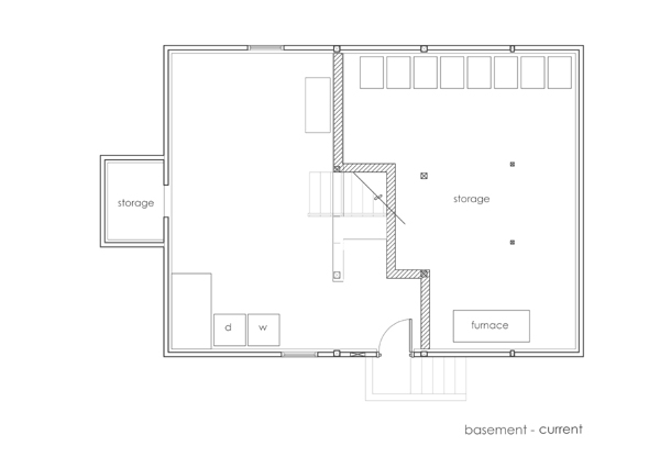
In 2008, we also gutted our basement and created a “short basement” where our crawl space used to be. We also replaced our old tank water heater with a tankless version that is mounted on the outside of the house. The gigantic furnace that used to sit in the middle of the basement was replaced with a new high efficiency gas furnace that fits perfectly in the short basement. Initially, we thought that our small basement would just be for storage, laundry and mechanical equipment, but with a little creative thinking we now we have a virtual clean slate to work with!
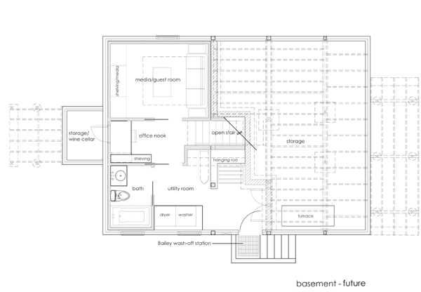
So, everything except the bedroom, bathroom and front porch will be next year’s project. Daunting? Not really. I think we’ve learned a lot of valuable lessons during our previous projects and have also been able to plan ahead. For instance, when the furnace was installed they stubbed out for the new gas range and the duct work and registers were located with the remodel in mind. When we re-did the plumbing we made sure that the new kitchen lines would easily tie in to the existing system and all the windows have been replaced. There will also be a demo party. Oh yes. So hopefully, this time next year we can post a current plan that looks something close to the “future” plan (we probably won’t get to the basement till 2011). Of course, we don’t currently own about half the furniture shown in that plan (we’ve been coveting Eames plywood chairs for the living room), so we may be embracing a very minimalist look for awhile.
Besides finishing the porch (we will, we will!), we’ll be spending the next several months finalizing the details and construction schedule for the next big project. Stay tuned for deep thoughts on kitchen cabinets, flooring options, and lots of sliding doors.






Wow great job on everything so far! That’s so exciting to hear that you plan to be done with the whole house in just a short time. We’re getting burned out ourselves with our house projects left to do before winter. And we have many, many more years before our house will be “finished.” Oh well I can live vicariously through other people’s remodels.
Well, I think it will be a long time before the house is actually finished. Even if we get the main floor done next year, we still have the basement, landscaping and the garage/carport (and maybe an addition or detached accessory dwelling unit that we’ve been toying with). But the kitchen/dining/living will definitely be a major milestone! That’s exciting about your geothermal system! We considered it for our house, but we don’t really have the space (or $$) for a ground loop. We also considered doing an air-source heat pump but ultimately decided on a high efficiency gas furnace since we don’t need A/C here (and unfortunately Seattle has some pretty specific restrictions about heat pump locations).
I had to laugh, the husband and I have been tackling the new woodwork since last week. It is sitting in the the basement for the last final standing and sealing treatment. The husband has suggested 12 other things that we could be doing this evening, woodwork is not hot on the list of fun things to do on a Saturday night. Time to suck it up and go into the dungeon.
Wow, looks like you have a lot of future plans too. I’m just dying to do something cosmetic we’re stuck just trying to get the house to function properly right now. That and we’re too practical. : ) Just two more years until we do the major bathroom & master bedroom remodel.
There’s nothing wrong with an efficient forced air system it’s a heck of a lot better than what you had before! We weren’t even looking at a geothermal system at first but quickly realized that we were an ideal candidate for it (no access to natural gas, the payback vs our fuel oil system is huge, we’re going to stay in the house for a long time, we had to replace both our AC & furnace, we get the tax credit and we had the $ set aside for house stuff though we weren’t planning on spending it all in one spot!).
BTW I love your clean lined blog layout. That and I’m a sucker for pretty floor plans.
[…] all of the design and planning that has to happen first. We’ve given sneak peaks here and there, but there is much more in the […]
[…] see how the space will instantly transform post-demo! To see past posts about our big plans, click here, here or […]