Cabin Design
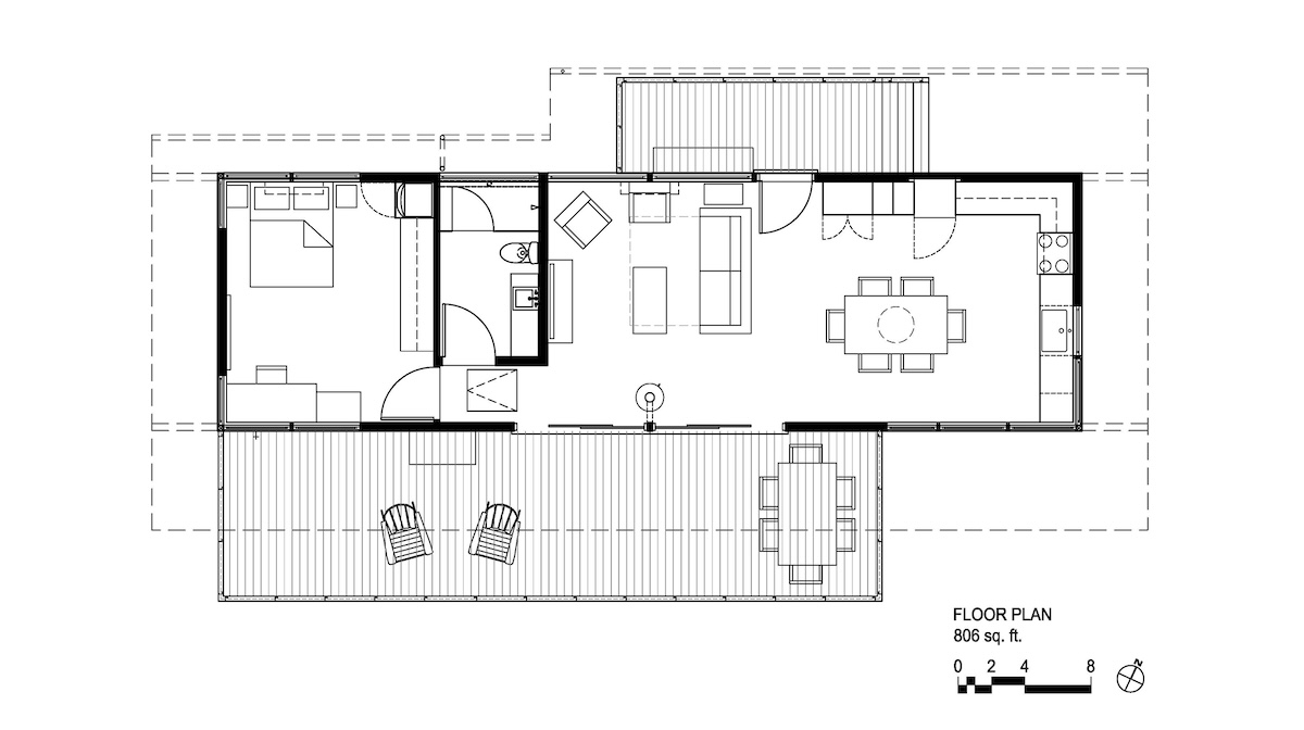
Currently under construction, this modest home (806 SF) is perched on the shore of a lake, nestled among the surrounding trees on the Olympic Peninsula in Western Washington.
Designed for efficiency and affordability, we used a simple palette of durable materials. The generous overhangs provide protection in a very wet climate, while energy-efficient windows allow wide views of the lake and mountains beyond.
The home is elevated to protect against potential flooding events.
As architects, part of our job is to weave the various requirements with the client’s ideas and goals to create a design solution that meets both the big picture dreams as well as the technical minutia.

Say hello. Tell us about your project.


