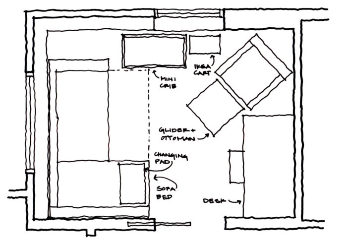
making room for #2

As soon as we found out we were expecting baby #2, I started thinking about exactly how we were going to fit another small human in our house. There’s not an obvious solution (like an extra room!), but people live in much tighter living situations with two kiddos so I feel confident we can come […]

Read More

basement bathroom palette

We haven’t finalized every decision with the basement bathroom, but I feel like we’ve narrowed it down enough to share our general design direction (click to enlarge). It’s a shocking departure from the rest of our house, right? Kyle and I joked about how it does have a lot of similarities to our other bathroom […]

Read More

it’s bathroom + laundry time!

Well, we thought our building permit expired in mid-July but we got a notice the other day saying it’s actually the end of May. Oh, snap. So, time to hustle. We haven’t really talked about the unfinished bathroom and laundry room much in the last two years and that’s because we haven’t really done anything […]

Read More

new lighting that caught my eye

One of my goals with this blog is to include more design-focused posts about products or materials – things that are original and interesting but don’t take hours to write and assemble. So, a few weeks ago when I came across some new lighting while flipping through the Crate&Barrel catalog I thought, “this would make […]

Read More

master bedroom redo: wall color options

Yesterday, I painted swatches of the four bluish-gray colors we’re considering for the bedroom walls. (They are, from left to right: “silver streak”, “eclipse”, “smoke gray” and “ashland slate”. All Benjamin Moore.) Drastic differences, huh? Kyle and I laughed at the idea of a serious blog post about what color we should choose (though it’s […]

Read More

FAQ

An architect is a qualified professional that not only designs your home or remodel but acts as your advocate throughout the entire process. A good architect will listen, they’ll be honest about how much things cost and how long things take and they’ll use their years of expertise to navigate an onerous permitting process, help vet potential contractors and be there for you during construction. If you don’t have an architect, that work is either done by you or the builder and compromises and sacrifices will inevitably happen.

This depends largely on the size and scope of the project and where you’re located. In some jurisdictions it’s easy and straightforward to get a permit, in others it can take 6 months to a year or longer. We usually advise clients to budget 3 -6 months for design for smaller projects and 12 months for larger projects. Permitting timelines can extend those estimates. Construction can take 4-6 months for small remodels or 16-18 months for custom homes.

Absolutely! We love to see what clients like (or don’t like!) and we’re used to gleaning the important info from all sorts of media – photos, sketches, diagrams – we’ve seen it all!

Maybe – this really depends on the housing market and how much time you have before you make an offer. It also depends on the property itself. If you’re looking at a house with a steep slope, we may advise that a geotechnical and structural engineer make their own evaluation. This can add more time based on people’s ability. We can usually make some basic recommendations based on our knowledge of the local codes, but it’s not a replacement for a more thorough feasibility study. If possible, we usually recommend that people make an offer contingent on a more thorough analysis. What we don’t want to do is give you a rosier outlook only to find that there were some unexpected issues with the property.

Depending on the scope of the project, phasing can be a practical approach. However, we usually advise that homeowners do everything in one phase if possible – this not only takes less time but simplifies the permitting process and is a more appealing process to contractors. When you phase a project, you have repeat mobilization costs that create a more expensive project in the end than doing it all at once. We’re happy to talk through phasing options though as each project is unique and sometimes it does make sense.

Yes! For us, interior design is an integral part of our process. We enjoy working with homeowners to think about their homes holistically and have extensive experience in all aspects of the design process.

In our experience, successful projects have homeowners that are engaged but trust us and the process. They ask questions and are clear communicators. They make timely decisions and speak up if something doesn’t feel right. They’re transparent about budget and schedule constraints so there aren’t missed expectations.