deck progress: 82 is too hot

Well, we started the day with every intention to finish the deck and clean up the concrete rubble in the backyard. But today was hot, like…82 degrees. Too hot for manual labor. So we scrapped our plans and did this instead: Gasworks Park – so many people, so many watercraft!  Bailey is one of the few […]

Read More

deck progress: week three

With the framing complete, we were finally able to start the deck boards last week. And you know what? It is taking forever. So we don’t have a completed deck to show you just yet, but we do have ample Bailey photos so we hope that will help fill the void. Metaphorically speaking of course, […]

Read More

deck progress: week two

So let’s rewind to last Thursday – Kyle and I came home early to unload the decking that arrived on a truck from Eastern Washington (more on that later). With warm(ish) temperatures and hours of daylight left we decided to put on our grubby clothes and get to it. With the footings complete, the next step was to prep […]

Read More

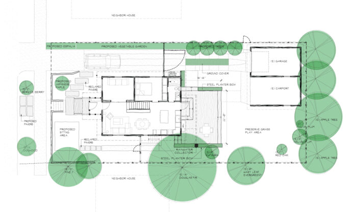
site plan

After all this talk about concrete removal and deck building, I realized last week that we didn’t have an actual site plan on our blog. So, I took our CAD version and prettied it up for you (click to enlarge).  A few things to mention: The deck will have steps on three sides, providing a direct […]

Read More

deck progress

Last weekend, with the pesky concrete gone, Kyle started work on the deck footings. First step – dig holes. 14 of them. I should stop and say that this deck is probably bigger than you think. It’s grown since our initial sketchup design, but is now large enough to accommodate a grill and table and chairs […]

Read More

FAQ

An architect is a qualified professional that not only designs your home or remodel but acts as your advocate throughout the entire process. A good architect will listen, they’ll be honest about how much things cost and how long things take and they’ll use their years of expertise to navigate an onerous permitting process, help vet potential contractors and be there for you during construction. If you don’t have an architect, that work is either done by you or the builder and compromises and sacrifices will inevitably happen.

This depends largely on the size and scope of the project and where you’re located. In some jurisdictions it’s easy and straightforward to get a permit, in others it can take 6 months to a year or longer. We usually advise clients to budget 3 -6 months for design for smaller projects and 12 months for larger projects. Permitting timelines can extend those estimates. Construction can take 4-6 months for small remodels or 16-18 months for custom homes.

Absolutely! We love to see what clients like (or don’t like!) and we’re used to gleaning the important info from all sorts of media – photos, sketches, diagrams – we’ve seen it all!

Maybe – this really depends on the housing market and how much time you have before you make an offer. It also depends on the property itself. If you’re looking at a house with a steep slope, we may advise that a geotechnical and structural engineer make their own evaluation. This can add more time based on people’s ability. We can usually make some basic recommendations based on our knowledge of the local codes, but it’s not a replacement for a more thorough feasibility study. If possible, we usually recommend that people make an offer contingent on a more thorough analysis. What we don’t want to do is give you a rosier outlook only to find that there were some unexpected issues with the property.

Depending on the scope of the project, phasing can be a practical approach. However, we usually advise that homeowners do everything in one phase if possible – this not only takes less time but simplifies the permitting process and is a more appealing process to contractors. When you phase a project, you have repeat mobilization costs that create a more expensive project in the end than doing it all at once. We’re happy to talk through phasing options though as each project is unique and sometimes it does make sense.

Yes! For us, interior design is an integral part of our process. We enjoy working with homeowners to think about their homes holistically and have extensive experience in all aspects of the design process.

In our experience, successful projects have homeowners that are engaged but trust us and the process. They ask questions and are clear communicators. They make timely decisions and speak up if something doesn’t feel right. They’re transparent about budget and schedule constraints so there aren’t missed expectations.