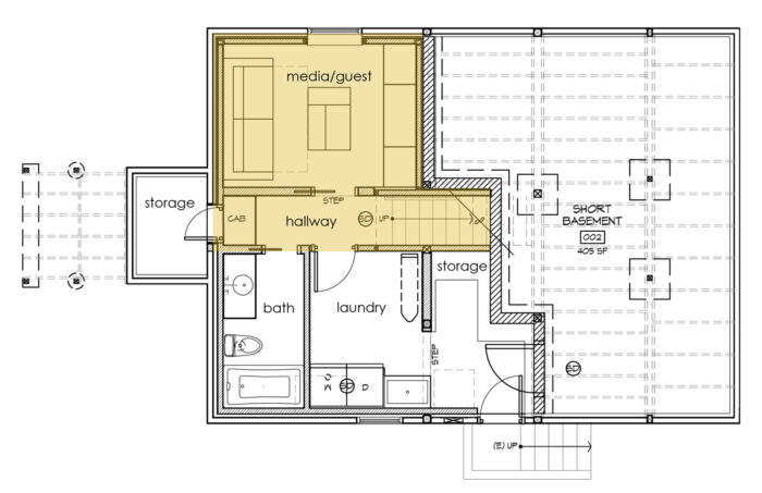
the basement plan

Last week we shared with you the work we’ve already done to our basement over the last 5+ years. After completing the structural work in 2009, we began brainstorming different ways to layout the new space (you can see the “before” and “current” floor plans of our basement on the design page). The basement is […]

Read More

studio loft

2011 was certainly a big year for design books and over the holidays I added several to my collection. (I love that on more than one occasion I was asked if Undecorate was a sequel to Decorate.) I also received some (much-needed) sewing books, many of which were recommended by you guys! While flipping through […]

Read More

the sad basement: a look back

As we begin to work on our basement (again), we thought it might be fun to rewind back to ’06 and revisit the metamorphosis that has already taken place.  So here goes. When we bought our home in ’06, it came with a finished basement. Yep. Something like this: A built-in wardrobe, hunter green carpet […]

Read More

LCW

Last week, my sister suggested that we were one chair away from needing to rename the blog “chezeames”. She might have a point. Well, hello there. This chair has been on our wish list for a few years and now that we’re focusing on finishing up the somewhat neglected living room, we decided to just go for it. […]

Read More

side table

After making the decision to move the coffee table into the flex room, we realized that what we really needed for the living room space was some sort of side table. With our L-shaped couch configuration, our first thought was to find something that could overlap the chaise. Something like this: This style of table is […]

Read More

FAQ

An architect is a qualified professional that not only designs your home or remodel but acts as your advocate throughout the entire process. A good architect will listen, they’ll be honest about how much things cost and how long things take and they’ll use their years of expertise to navigate an onerous permitting process, help vet potential contractors and be there for you during construction. If you don’t have an architect, that work is either done by you or the builder and compromises and sacrifices will inevitably happen.

This depends largely on the size and scope of the project and where you’re located. In some jurisdictions it’s easy and straightforward to get a permit, in others it can take 6 months to a year or longer. We usually advise clients to budget 3 -6 months for design for smaller projects and 12 months for larger projects. Permitting timelines can extend those estimates. Construction can take 4-6 months for small remodels or 16-18 months for custom homes.

Absolutely! We love to see what clients like (or don’t like!) and we’re used to gleaning the important info from all sorts of media – photos, sketches, diagrams – we’ve seen it all!

Maybe – this really depends on the housing market and how much time you have before you make an offer. It also depends on the property itself. If you’re looking at a house with a steep slope, we may advise that a geotechnical and structural engineer make their own evaluation. This can add more time based on people’s ability. We can usually make some basic recommendations based on our knowledge of the local codes, but it’s not a replacement for a more thorough feasibility study. If possible, we usually recommend that people make an offer contingent on a more thorough analysis. What we don’t want to do is give you a rosier outlook only to find that there were some unexpected issues with the property.

Depending on the scope of the project, phasing can be a practical approach. However, we usually advise that homeowners do everything in one phase if possible – this not only takes less time but simplifies the permitting process and is a more appealing process to contractors. When you phase a project, you have repeat mobilization costs that create a more expensive project in the end than doing it all at once. We’re happy to talk through phasing options though as each project is unique and sometimes it does make sense.

Yes! For us, interior design is an integral part of our process. We enjoy working with homeowners to think about their homes holistically and have extensive experience in all aspects of the design process.

In our experience, successful projects have homeowners that are engaged but trust us and the process. They ask questions and are clear communicators. They make timely decisions and speak up if something doesn’t feel right. They’re transparent about budget and schedule constraints so there aren’t missed expectations.